• Architecture • BIM • Engineering • Design Coordination • Architecture • BIM • Engineering • Design Coordination
Project : Corpus, Oegstgeest
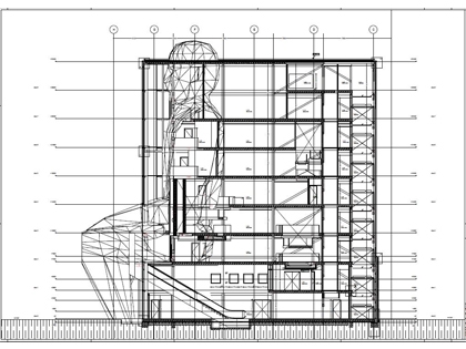
Type : Museum
Status : Completed - 2008
Client : Heddes Bouw
Architect : PBV Architects
Role : BIM, Clash detection, working drawings
Area : 5,500 Sq.mts.
Information :  
After the final-design phase, 3D BluePrint was asked to create a 3D model in order to find any clashes related to synchronization of information from all design-partners and to bring the drawings to a execution level. After a number of major changes in relation to budget overrun, 3D BluePrint generated new architectural drawings, with BIM.
 
Powered by Phoca Gallery