• Architecture • BIM • Engineering • Design Coordination • Architecture • BIM • Engineering • Design Coordination
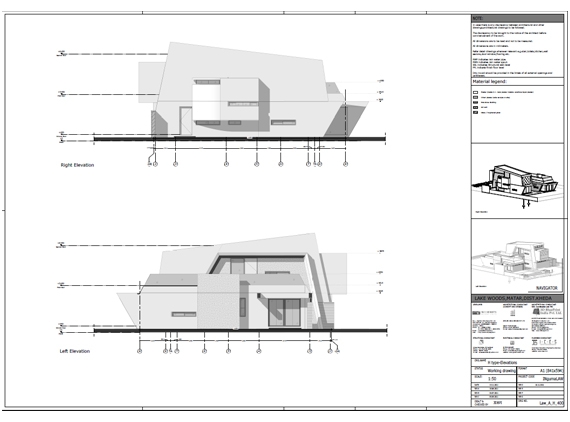
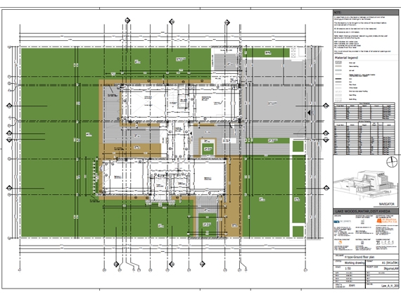
Project : Lakewoods
Type : Residential
Status : Construction phase
Client : Sky Heights
Architect : Atelier India Design Pvt. Ltd.
Role : BIM, quantity, Design coordination, PMC
Area : Site 128,000 Sq. mts.  Built 28,800 Sq. mts.
Information :  
Taking shape near Matar (Dist: Kheda) nearly 45 KM from Ahmedabad. It has 142 high end luxurious villas with two types and various plot sizes ranging from 400 to 1200 Sq. Mt.. Common amenities like club house, swimming pool, play areas, etc are state of the art. Site and services execution started with sample houses about to start. The project will be one of its kind with high end finishes and one of its kind design. Project expected to complete by December, 2012.
 
Powered by Phoca Gallery